Woonoppervlakte
Circa 104 m²
Perceeloppervlakte
Circa 233 m²
Bouwjaar
Gebouwd in 1973
Aantal kamers
4 kamers (3 slaapkamers)

Voorstraat 138

4702 EV, Roosendaal (Noord-Brabant)

Welkom aan de Voorstraat 138 in Roosendaal! Deze charmante half vrijstaande woning ligt op slechts 20 minuten wandelen (of 10 minuten fietsen) van het bruisende centrum. Hier woon je heerlijk centraal, met alle voorzieningen binnen handbereik, maar toch in een rustige straat met parkeergelegenheid voor de deur. Binnen tref je een verrassend ruime gezinswoning met drie slaapkamers, een sfeervolle woonkamer met openslaande deuren naar de tuin, én een diepe achtertuin met volop groen en privacy. De woning biedt daarnaast mogelijkheden om verder te moderniseren en zo helemaal je eigen stijl door te voeren.

Wat je zeker niet mag missen:
- Riante en lichte woonkamer met sfeervolle schouw en openslaande tuindeuren
- Gesloten keuken met veel apparatuur én doorgang naar praktische bijkeuken
- Diepe, groene achtertuin met bergingen en achterom
- Drie fijne slaapkamers en een extra kamer met toilet en wastafel

Klinkt als jouw nieuwe thuis? Plan dan snel die bezichtiging in!

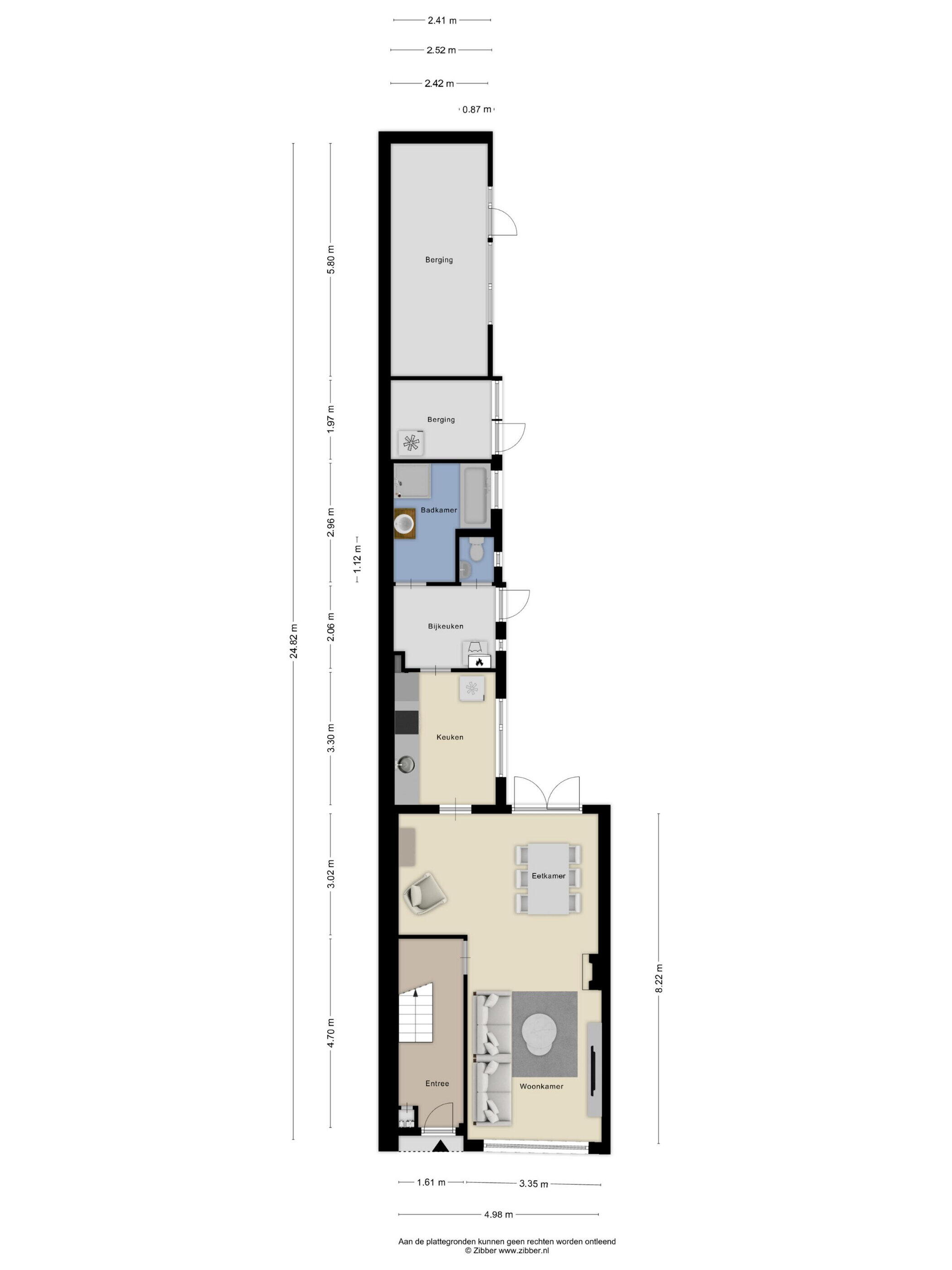
Entree
Je betreedt de woning via de voordeur aan de straatzijde, lekker stads! In de hal vind je de meterkast, de trap naar boven en een deur naar de woonkamer. Een nette en praktische entree die meteen een goede eerste indruk geeft.

Wonen & Koken
De woonkamer is gelegen aan de voorzijde van de woning en wordt heerlijk verlicht door de raampartijen. De sfeervolle schouw en mooie laminaatvloer geven het geheel een warme uitstraling. Achterin is er ruimte voor een royale eettafel bij de openslaande deuren naar de tuin, perfect voor gezellige diners of lange zomerse avonden. En dat extra hoekje? Ideaal als lees- of werkplek! De gesloten keuken is functioneel en uitgerust met fornuis, afzuigkap, oven, combi-oven, koel-vriescombinatie en vaatwasser. Vanuit de keuken bereik je de praktische bijkeuken met wasmachineaansluiting en ruimte voor extra koelkast of opbergkast. Ook vanuit hier stap je zo de tuin in.

Slapen, Dromen & Douchen
Op de verdieping zijn drie slaapkamers te vinden, waarvan twee zeer ruim, perfect als master bedroom, en een derde, compacte kamer met inbouwkast, ideaal als kinderkamer, werkkamer of logeerkamer. De woning beschikt over een badkamer op de begane grond met douche, ligbad en wastafelmeubel. Er is daarnaast een separaat toilet op de begane grond. Op de verdieping is nog een extra kamer met toilet, wastafelmeubel en droger; geen volwaardige badkamer, maar zeker met potentie om er één van te maken! Maar er kan natuurlijk ook een slaapkamer van gemaakt worden.

Tuinieren, Zonnen & Genieten
De diepe achtertuin is een groot pluspunt van deze woning. Je bereikt de tuin via zowel de woonkamer als de bijkeuken. De tuin is voorzien van een betegeld terras, plantenborders, groen en kiezelpartijen. Aan de woning zijn twee bergingen gebouwd en er is een handige achterom via het gangpad naast de woning. Hier kun je heerlijk genieten van de zon én de rust.

Omgeving en Faciliteiten
De woning ligt op een fijne locatie op slechts 20 minuten lopen van het centrum van Roosendaal. Winkels, scholen, horeca en openbaar vervoer zijn allemaal snel bereikbaar. Of je nu graag wandelt, fietst of gewoon van het stadsleven geniet, hier zit je goed.

Sfeer en Doelgroep
De woning ademt een warme, authentieke sfeer en biedt volop mogelijkheden om er je eigen droomplek van te maken. Ideaal voor gezinnen, stellen of handige starters die niet bang zijn om hun handen uit de mouwen te steken. Een huis met potentie én karakter!

Toelichtingsclausule NEN2580:
De Meetinstructie is gebaseerd op de NEN2580. De Meetinstructie is bedoeld om een meer eenduidige manier van meten toe te passen voor het geven van een indicatie van de gebruiksoppervlakte. De Meetinstructie sluit verschillen in meetuitkomsten niet volledig uit, door bijvoorbeeld interpretatieverschillen, afrondingen of beperkingen bij het uitvoeren van de meting.

Plattegronden

Overdracht

Koopsom
€ 310.000 k.k.
Status
Verkocht
Aanvaarding
In overleg

Bouw

Object type
Eengezinswoning, halfvrijstaande woning
Soort bouw
Bestaande bouw
Bouwjaar
1973
Soort dak
Plat dak

Oppervlakte en inhoud

Woonoppervlakte
104 m²
Perceeloppervlakte
233 m²
Inhoud
436 m³
Overige inpandige ruimte
19 m²
Gebouwgeb. buitenruimte
1 m²

Indeling

Aantal kamers
4 kamers (3 slaapkamers)
Aantal badkamers
2 badkamers
Badkamervoorzieningen
Ligbad, douche, wastafel toilet, wastafel, wasmachineaansluiting
Aantal woonlagen
2 woonlagen

Energie

Energielabel
F
Energielabel registratie
18-02-2021
Isolatie
Dubbel glas, hr glas
Verwarming
Cv-ketel
Warm water
Cv-ketel
Cv ketel
Hr-107 combiketel gas gestookt uit 2020 (eigendom)

Buitenruimte

Ligging
In woonwijk
Tuin
Achtertuin

Bergruimte

Schuur / berging
Aangebouwd steen

Garage

Soort garage
Geen garage

Parkeergelegenheid

Soort parkeergelegenheid
Openbaar parkeren

Energieverbruik in Roosendaal

Energielabel deze woning

Energielabel F

Publicatie energielabel: 18-02-2021

Stroomverbruik per jaar

4120 kWh

(Gemiddelde vrijstaande woning in Roosendaal)

Gasverbruik per jaar

1900 m³

(Gemiddelde vrijstaande woning in Roosendaal)

* Cijfers zijn afkomstig van het CBS en bedoeld als indicatie en kunnen verschillen voor deze woning

Indicatie hypotheeklasten

Eigen inleg:
Spaargeld / overwaarde

Rente:
Laagste 10-jaars rente

Laagste 10-jaars rente

2,78% - Centraal Beheer - NHG


3,04% - Centraal Beheer - 80%

Laagste 20-jaars rente

3,29% - Centraal Beheer - NHG


3,52% - Centraal Beheer - 80%

Laagste 30-jaars rente

3,41% - Centraal Beheer - NHG


3,7% - Argenta - 80%


Hypotheek:

Bruto maandlasten: € 0 p/m

Netto maandlasten: € 0 p/m

Hoe berekenen we dit?

Het rentepercentage is gebaseerd op de laagste 10 jaars vaste rente voor één hypotheekdeel. De vermelde rente (2.78% met NHG) is gecontroleerd op 27-04-2026. Deze berekening is gebaseerd op een annuïteitenhypotheek die volledig wordt afgelost, waarbij de maandlasten gedurende de gehele looptijd gelijk blijven. De werkelijke rente en netto maandlasten kunnen variëren, afhankelijk van uw persoonlijke situatie en de hypotheekverstrekker. Raadpleeg een financieel adviseur voor een nauwkeurige berekening en advies. Aan deze berekening kunnen geen rechten worden ontleend; het dient enkel als indicatie.

Documentatie

Zonnegrenzen bekijken

Op de kaart

Inwoners in Roosendaal

Cijfers voor postcodegebied 4702

Totaal aantal inwoners
13185 inwoners
Mannen
50%
Vrouwen
50%

Inwoners in Roosendaal

Cijfers voor postcodegebied 4702

tot 15 jaar
16%
15 tot 25 jaar
12%
25 tot 35 jaar
27%
45 tot 65 jaar
27%
65 en ouder
18%

Huishoudens in Roosendaal

Cijfers voor postcodegebied 4702

Eenpersoons zonder kinderen
41%
Meerpersoons zonder kinderen
26%
Huishoudens zonder kinderen
67%

Huishoudens in Roosendaal

Cijfers voor postcodegebied 4702

Huishoudens met één kind
9%
Huishoudens met meerdere kinderen
24%
Huishoudens met kinderen
33%

Woningen in Roosendaal

Cijfers voor postcodegebied 4702

Woningen voor 1945
29%
Woningen tussen 1945 en 1965
38%
Woningen tussen 1965 en 1975
10%
Woningen tussen 1975 en 1985
5%
Woningen tussen 1985 en 1995
2%

Woningen in Roosendaal

Cijfers voor postcodegebied 4702

Woningen tussen 1995 en 2005
8%
Woningen tussen 2005 en 2015
8%
Woningen na 2015
1%
Huurwoningen
50%
Koopwoningen
50%

Overige in Roosendaal

Cijfers voor postcodegebied 4702

Gemiddelde WOZ waarde
€ 183.000,-
Personen onder de 65 met uitkering
11%

Overige in Roosendaal

Cijfers voor postcodegebied 4702

Adressen per km²
2116
Stedelijkheid (schaal 1 op 5)
80%
Postcode kaart 4702 Gemeente kaart roosendaal

Indien u vragen heeft of u wilt een bezichtiging inplannen, dan kunt u gebruik maken van het formulier hiernaast. Er zal daarna op korte termijn contact met u worden opgenomen.

Vakidioten met een passie voor vastgoed

Bij C&R Makelaars draait alles om jou en je woning. Wij zijn een frisse, energieke generatie makelaars met een passie voor mensen en de woningmarkt.

We geloven in een persoonlijke aanpak zonder poespas: eerlijk, transparant en altijd met een flinke dosis enthousiasme. Het verkopen van je huis is een belangrijke stap, en daarom begeleiden we je op een manier die bij jou past, van begin tot eind.

Met onze diepgaande kennis van de lokale markt geven we je waardevol advies dat perfect aansluit bij jouw situatie én dat van potentiële kopers.

Daarnaast staat ons creatieve team van vastgoedmarketeers klaar om jouw woning in de schijnwerpers te zetten. Met slimme en doordachte strategieën zorgen we ervoor dat je huis opvalt en het maximale resultaat behaalt.

Jouw tevredenheid is ons einddoel. We zetten alles op alles om je verwachtingen te overtreffen. Nieuwsgierig naar ons team? Klik op de button hieronder en maak kennis met ons!

Vakidioten met een passie voor vastgoed
Reviews C&R Makelaars

Voorstraat 138, Roosendaal

€ 310.000 k.k. - Verkocht

Helaas, deze woning is verkocht!

Net te laat, deze woning is al verkocht. Laat een zoekopdracht bij ons achter zodat wij u direct kunnen helpen wanneer er nieuw aanbod beschikbaar komt.